- Woonoppervlakte
- Circa 78 m²
- Perceeloppervlakte
- Circa 115 m²
- Bouwjaar
- Gebouwd in 1962
- Aantal kamers
- 4 kamers (3 slaapkamers)
Vlakbij het centrum is deze uitstekend onderhouden, instapklare en uitgebouwde tussenwoning gelegen.
Woonoppervlakte: 78 m²
Inhoud: 309 m³
Perceeloppervlakte: 115 m²
________________________________________
OMSCHRIJVING
De woning is recent voorzien van een nieuw, geïsoleerd dak, 8 zonnepanelen en aan de achterzijde royaal uitgebouwd met een ruime woonkeuken. De moderne keuken is uitgerust met diverse inbouwapparatuur, waaronder een stijlvol fornuis en een inductiekookplaat.
Meer zien? Bekijk de uitgebreide presentatie op zulthereschweg45.nl (kopieer en plak dit adres in uw browser).
Liever eerst digitaal rondkijken? Maak gebruik van de 360°-tour onder de foto’s en wandel virtueel door de woning—zo ontdekt u elke ruimte tot in detail!
________________________________________
OMGEVING
Deze karakteristieke woonwijk uit de jaren ’60 ligt op korte afstand van het centrum. Het levendige en gastvrije Drentse dorp Roden biedt een breed scala aan winkels, sportfaciliteiten en horecagelegenheden, omringd door prachtige natuur. Steden als Groningen en Assen zijn binnen respectievelijk 15 en 20 minuten bereikbaar. Daarnaast rijdt er meerdere keren per uur een bus richting Groningen—ideaal voor woon-werkverkeer.
________________________________________
INDELING
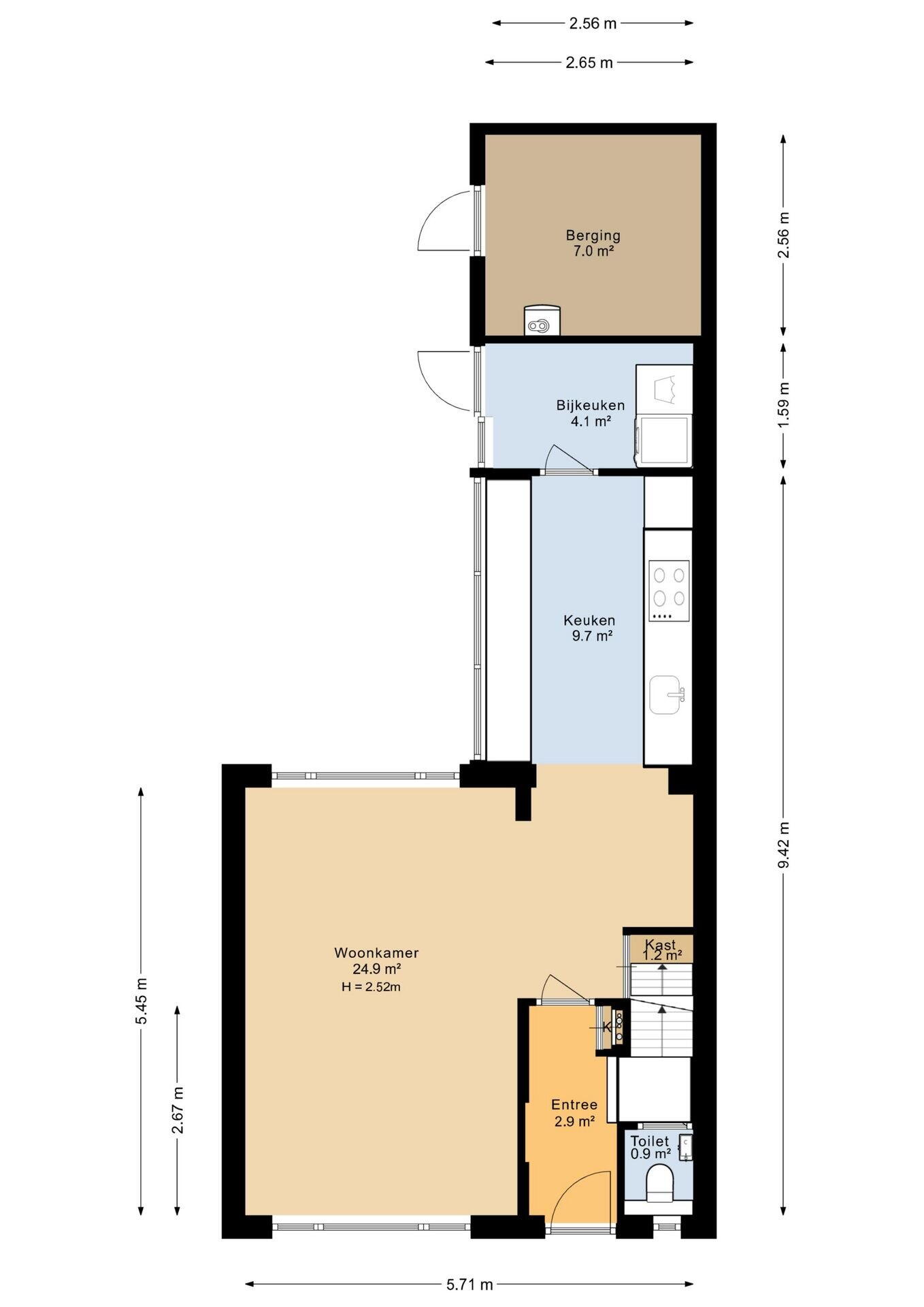
Begane grond: hal/entree, toilet, kelder, L-vormige woonkamer die overgaat in een open woonkeuken (samen circa 35 m²), bijkeuken met achter entree en een ruime berging.
1e verdieping: overloop, 3 slaapkamers van ca. 5 m², 8 m² en 10,5 m². Moderne, vergrote badkamer met douche en wastafelmeubel.
Zolder: vlizotrap naar bergzolder.
Tuin: de tuin beschikt over een achterom via een brandgang.
________________________________________
BIJZONDERHEDEN
• De woning is voorzien van spouw- en dakisolatie
• Dubbel glas en HR++-glas
• Moderne keuken met inbouwapparatuur (2022)
• Nieuw dak en nieuwe pannen (2022)
• Nieuw dakleer op uitbouw (2023)
• Schilderwerk buitenzijde (2025)
Onze foto’s zijn gemaakt met een standaardlens (geen groothoek), waardoor ze een realistische en eerlijke weergave van de ruimtes bieden. Zo krijgt u een betrouwbaar beeld van de woning—precies zoals u deze bij een bezichtiging zult ervaren.
Wilt u nog meer inzicht? Bekijk dan de digitale rondleiding: hiermee krijgt u een gedetailleerd en helder beeld en kunt u zich eenvoudig een goede voorstelling maken van de indeling en de ruimtes. Lees de volledige omschrijving
Overdracht
- Vraagprijs
- € 295.000 k.k.
- Status
- Verkocht
Bouw
- Object type
- Eengezinswoning, tussenwoning
- Soort bouw
- Bestaande bouw
- Bouwjaar
- 1962
- Soort dak
- Zadeldak bedekt met pannen
Oppervlakte en inhoud
- Woonoppervlakte
- 78 m²
- Perceeloppervlakte
- 115 m²
- Inhoud
- 309 m³
Indeling
- Aantal kamers
- 4 kamers (3 slaapkamers)
- Aantal badkamers
- 1 badkamer en 1 apart toilet
- Badkamervoorzieningen
- Douche en wastafelmeubel
- Aantal woonlagen
- 2 woonlagen, een zolder, en een kelder
- Voorzieningen
- Glasvezelkabel en zonnepanelen
Energie
- Energielabel
- C
- Energielabel registratie
- 07-11-2025
- Isolatie
- Dakisolatie, dubbel glas en muurisolatie
- Verwarming
- Cv-ketel
- Warm water
- Cv-ketel
- Cv ketel
- Remeha (gas gestookt combiketel, eigendom)
Buitenruimte
- Tuin
- Achtertuin en voortuin
- Afmetingen achtertuin
- 24 m² (8,00 meter diep en 3,00 meter breed)
Bergruimte
- Schuur / berging
- Aangebouwde stenen berging
Parkeergelegenheid
- Soort parkeergelegenheid
- Openbaar parkeren
Energieverbruik in Roden
Energielabel deze woning
Energielabel C
Publicatie energielabel: 07-11-2025
Stroomverbruik per jaar
(Gemiddelde tussenwoning in Roden)
Gasverbruik per jaar
(Gemiddelde tussenwoning in Roden)
* Cijfers zijn afkomstig van het CBS en bedoeld als indicatie en kunnen verschillen voor deze woning
Indicatie hypotheeklasten
Eigen inleg:
Spaargeld / overwaarde
Rente:
Laagste 10-jaars rente
Laagste 10-jaars rente
2,9% - Centraal Beheer Groen L... - NHG
3,13% - Centraal Beheer Groen... - 80%
Laagste 20-jaars rente
3,29% - Centraal Beheer Groen... - NHG
3,52% - Centraal Beheer Groen... - 80%
Laagste 30-jaars rente
3,41% - Centraal Beheer Groen... - NHG
3,74% - Centraal Beheer Groen... - 80%
Hypotheek:
Bruto maandlasten: € 0 p/m
Netto maandlasten: € 0 p/m
Hoe berekenen we dit?
Het rentepercentage is gebaseerd op de laagste 10 jaars vaste rente voor één hypotheekdeel. De vermelde rente (2.9% met NHG) is gecontroleerd op 13-01-2026. Deze berekening is gebaseerd op een annuïteitenhypotheek die volledig wordt afgelost, waarbij de maandlasten gedurende de gehele looptijd gelijk blijven. De werkelijke rente en netto maandlasten kunnen variëren, afhankelijk van uw persoonlijke situatie en de hypotheekverstrekker. Raadpleeg een financieel adviseur voor een nauwkeurige berekening en advies. Aan deze berekening kunnen geen rechten worden ontleend; het dient enkel als indicatie.
Documentatie
Kadastrale kaart
Leefomgeving
Plattegronden PDF
BAG uittreksel
WOZ waarderapport
Brochure
Bezoek onze website
Bezichtiging
Bod uitbrengen
Waardebepaling
Zoekopdracht
Alles downloaden
Zonnegrenzen bekijken
Op de kaart
Inwoners in Roden
Cijfers voor postcodegebied 9301
- Totaal aantal inwoners
- 11310 inwoners
- Mannen
- 48%
- Vrouwen
- 52%
Inwoners in Roden
Cijfers voor postcodegebied 9301
- tot 15 jaar
- 14%
- 15 tot 25 jaar
- 9%
- 25 tot 35 jaar
- 18%
- 45 tot 65 jaar
- 26%
- 65 en ouder
- 34%
Huishoudens in Roden
Cijfers voor postcodegebied 9301
- Eenpersoons zonder kinderen
- 35%
- Meerpersoons zonder kinderen
- 37%
- Huishoudens zonder kinderen
- 72%
Huishoudens in Roden
Cijfers voor postcodegebied 9301
- Huishoudens met één kind
- 7%
- Huishoudens met meerdere kinderen
- 21%
- Huishoudens met kinderen
- 28%
Woningen in Roden
Cijfers voor postcodegebied 9301
- Woningen voor 1945
- 3%
- Woningen tussen 1945 en 1965
- 15%
- Woningen tussen 1965 en 1975
- 44%
- Woningen tussen 1975 en 1985
- 14%
- Woningen tussen 1985 en 1995
- 10%
Woningen in Roden
Cijfers voor postcodegebied 9301
- Woningen tussen 1995 en 2005
- 8%
- Woningen tussen 2005 en 2015
- 4%
- Woningen na 2015
- 2%
- Huurwoningen
- 40%
- Koopwoningen
- 60%
Overige in Roden
Cijfers voor postcodegebied 9301
- Gemiddelde WOZ waarde
- € 217.000,-
- Personen onder de 65 met uitkering
- 8%
Overige in Roden
Cijfers voor postcodegebied 9301
- Adressen per km²
- 1126
- Stedelijkheid (schaal 1 op 5)
- 60%
Welkom bij Peter’s Makelaardij
Uw betrouwbare partner in onroerend goed in Roden en omstreken. Sinds 1986 is ons kantoor gevestigd aan de Brink 37 in Roden, waar onze ervaring en kennis van de lokale markt samenkomen om u optimaal te begeleiden bij het kopen, verkopen of huren van een woning.
Onder leiding van Peter Brandsma, die in 1995 het stokje overnam van zijn vader Cor, hebben wij een rijke historie opgebouwd in de makelaardij. Met meer dan 35 jaar ervaring is Peter niet alleen een deskundige makelaar, maar ook een betrokken adviseur die zich volledig inzet voor zijn klanten. Hij staat bekend om zijn no-nonsense aanpak en zijn vermogen om elke woning effectief in de markt te zetten voor de best haalbare prijs.
Bij Peter’s Makelaardij geloven we dat maatwerk essentieel is. Elke woning is uniek en vergt een eigen strategie. Daarom begint ons proces altijd met een vrijblijvend kennismakingsgesprek om uw wensen in kaart te brengen. Ons team, bestaande uit ervaren professionals zoals Germa Bijholt en Gerben de Vries, staat klaar om zowel bij de verkoop als bij de aankoop van uw woning te ondersteunen.
Onze klanten waarderen ons werk enorm, zoals blijkt uit een gemiddelde beoordeling van 9.2 uit 10 op Funda en Google. Wij zijn er trots op dat cliënten ons kenmerken als deskundig, vriendelijk en altijd bereikbaar. Wilt u samen met ons aan uw woonwensen werken? Neem gerust contact op voor meer informatie of schrijf u in om op de hoogte te blijven van ons nieuwste aanbod. Peter’s Makelaardij - uw makelaar in Roden!
Nieuwste reviews
-
Stinsenweg 78
Hele kundige, professionele en nuchtere makelaar.Zeer prettig in contact, laagdrempelig en snel in reactie.Is helder in de werkwijze en onde...
-
den Dam 2
Peter weet waar hij over praat en is zeer deskundig. Ook het contact met zijn medewerkers is zeer goed.
-
Oosternielandsterweg 6
Betekenisvol, deskundig, betrouwbaar, goed bereikbaar, bekend met de markt, flexibel, goed ondergandelingsresultaat.